TRANSLATE
SIGN UP LOGIN
Refine Search

2200 Traders Road, Unit 1, Greenville, TX 75402

$1,600,000
  • 2200 Traders Road, Unit 1, Greenville, TX 75402 Main Photo

14 Total Photos [Click to View All]

Active
MLS#21123488
STATUSActive PROPERTY TYPECommercial - Office

Property Description

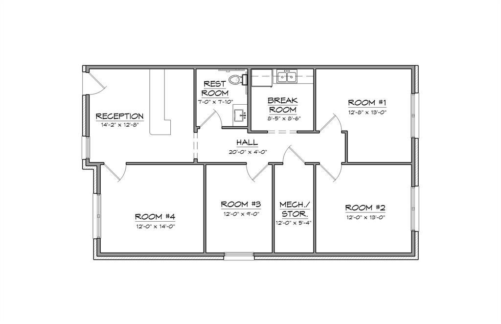
Each newly built office condos will be built for professionals will include Reception area, Multiple office, break area, restroom and covered front entry with approximately 1250 under roof for each unit. This listing is for a whole building of four suites 4996 sq ft. Located in Greenville .5 miles from I30. Easy access to TH Hwy 34, Roy Warren Parkway, FM1570 and more. We have already started construction and have poured the slabs Sept 19-Sept 30th. Units will be available by January 2026. Association dues $1200 a mth for whole building.

2200 Traders Road, Unit 1 | MLS# 21123488

This commercial property located at 2200 Traders Road, Unit 1, Greenville, TX 75402 is currently listed for sale with an asking price of $1,600,000. Search Greenville real estate on www.kellyrealtors.com today.

Property Features

Property Type: Commercial - Office
Cooling: Central Air, Electric
Heating: Central, Electric
Lot Size: 2.00 Acres
Roof Type: Composition, Metal
Stories: 1.0
Year Built: 2025

Feature Descriptions

Days on Site: 142
Exterior: Siding, Stone Veneer
Flooring: Ceramic Tile, Luxury Vinyl Plank
Parcel#: 26920
Parking: Common, Concrete, On Site
Parking Notes: Common, Concrete, On Site
Security: Prewired, Security Lights, Smoke Detector(s)
Units: 4
Utilities: All Weather Road, City Water, Community Mailbox, Concrete, Curbs, Electricity Connected, Phone Available

Listed By / Shown By

Listed By

Agency Name: Mckinney Real Estate Services
Agency Contact: 469-688-8664
Agent Name: Toni Spray

Shown By

Agency Title: Kelly, Realtors
Agency Phone: (254) 741-1500
Agency Email: info@kellyrealtors.com
Agency Text: (254) 717-6447

IDX logo

Login to My Homefinder

Pixel